NIWA AKIHITO
Atelier

私たちの
おもい

家づくりの
こだわり

暮らしやすい家を
提案

ライフスタイルになじむプランニング

住み心地の良さやゆとり感は、なにも床面積の大小だけで決まるのではありません。
それよりも大切なのは、それぞれの家族ごとのライフスタイルに合わせたプランニング力。必要な機能を整理して無駄のない動線で空間を構成し、部屋と部屋のつながり方や、大小さまざまな収納を計画することで、便利で快適な間取りを提案いたします。

ライフプラン事例

平面図1階

無駄のない動線で、暮らしやすい家づくり

①ご帰宅動線

玄関を上がり、クローゼットで上着を脱いでカバンを置き、ホームウェアに着替えて洗面室へ。片側の壁にはハンガーパイプを上下2段に、もう片側にはロッカー状の棚と、以前から使っていた整理ダンスなども組み込みます。

②お買い物動線

スーパーで買った食材を食品室に置いてからキッチンへ。

③お洗濯動線

取り込んだ洗濯物は一度にクローゼットに運んで棚に整理。

④お庭への導線

キッチンからお庭の畑にハーブを採りに、生ゴミもお庭のコンポスターへ。

ワンポイントアドバイス

  1. 下駄箱は、家族分の靴の他、シューズのメンテナンスセット、カサ、子供が小さい頃は縄跳びなども...。
  2. 壁の棚にはトイレットペーパーなどのストック
  3. 化粧品や洗面用品のストック
  4. カウンターの下にはパジャマなどの着替え用引出し、上には脱衣カゴやバスタオルをたたんで置きます。
  5. 帰宅して、まずポケットの中の財布や車のキーなど、小物を置いておく棚。
  6. 以前から使っていた食器棚をぴったり組み込んで有効活用します。
  7. 掃除道具入れ
  8. カウンター上には電話の子機や携帯の充電器。上下の棚には薬類や日用品を収納します。
  9. ダイニングテーブル廻りで使う小物のための引出し。
  10. 吹抜けのリビングを家の中心に据えて各部屋をつなげることで無駄な動線を省きます。床面積が少なくなれば、その分建築費を少なくすることができます。
  11. 深い軒の下のデッキで畑で採れた野菜の朝食を楽しむ。

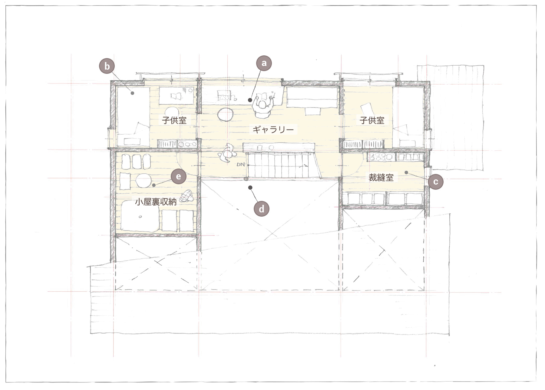
平面図2階

無駄のない動線で、暮らしやすい家づくり

ワンポイントアドバイス

  1. 家族みんなで使う書斎的スペース。子供たちは学校から帰ったら宿題を。2.7mの長いカウンター机と、振り返りには本やカバンをしまえる棚があります。みんなで使うパソコン、大きくて居間には置きたくないピアノもここです。
  2. シングルベッドがピタリと納まり、収納棚を置いてもオモチャが広げられるスペースがあります。やがて、勉強机を置くこともできます。
  3. 斜め天井の小屋裏空間を利用した裁縫室。ここなら作業の途中でも戸を閉めてしまえば安心です。
  4. 子供の安心感。吹抜けを中心につながった、家族の気配が伝わる空間。
  5. 斜め天井の低い空間でも、納戸としてなら十分使えます。

断面図

無駄のない動線で、暮らしやすい家づくり

ワンポイントアドバイス

  1. 平屋の桁から方流れ屋根を延長してできたロフト空間をギャラリーと子供室にしました。ローコストに2階をつくる一策です。
  2. 斜め天井の小屋裏をおひな様や扇風機などの季節物の収納として有効活用します。
  3. 階高を低めに押さえることで吹抜け越しの視線が近づき、2階との一体感を感じる楽しげな空間を作ることができます。

暮らしやすい家を提案

一覧に戻る